

THÔNG TIN DỰ ÁN
1. Vị trí dự án:
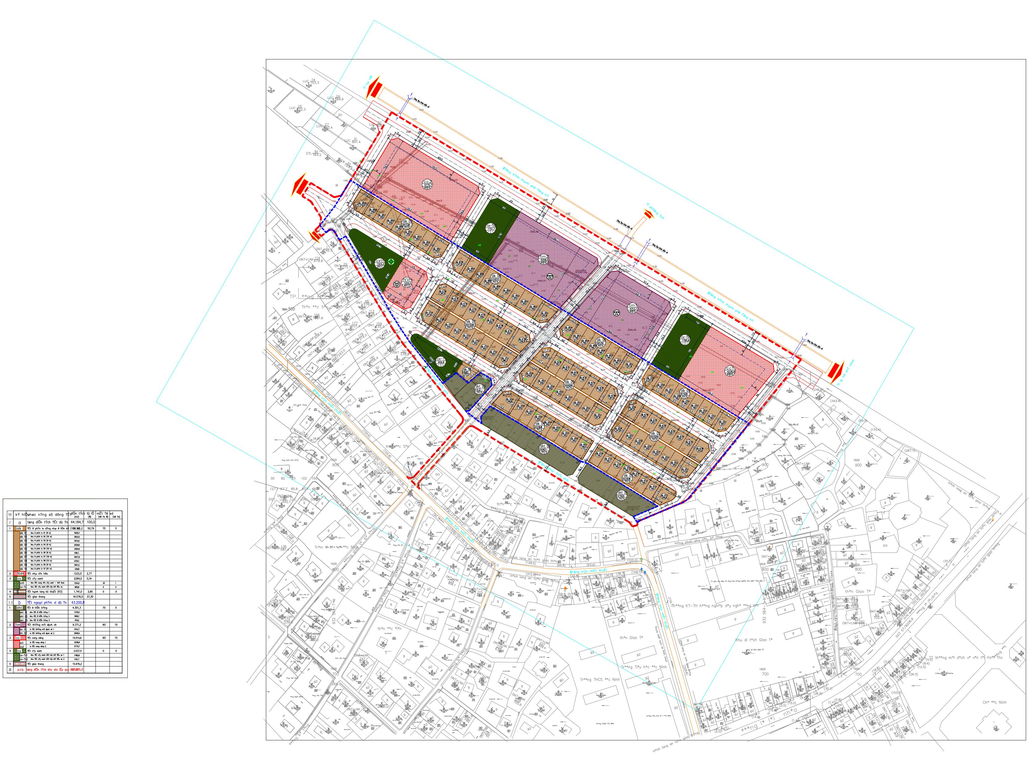
Dự án Khu vực lập quy hoạch chi tiết khu vực thôn Đức Sơn và thôn Đức Điền, xã Đức Ninh, thành phố Đồng Hới có ranh giới xác định như sau:
- Phía Đông Bắc giáp đường tránh thành phố Đồng Hới.
- Phía Đông Nam giáp khu dân cư hiện trạng và đất lúa.
- Phía Tây Nam giáp đường giao thông và khu dân cư hiện trạng.
- Phía Tây Bắc giáp đất lúa.
2. Quy mô đầu tư xây dựng: Tổng diện tích quy hoạch là 4,25 ha (trong đó tạo ra 2,25 ha đất ở) bao gồm các hạng mục: Giao thông, san nền, cấp điện, cấp nước, thoát nước mưa.
3. Thông tin đấu giá quyền sử dụng đất dự án:
Đợt 1, ngày 29/11/2020: Tổ chức đấu giá quyền sử dụng 69 lô đất với số tiền theo giá khởi điểm là 75.674 triệu đồng. Kết quả đấu giá thành công 60/69 lô đất đưa ra đấu giá thu được số tiền 75.885 triệu đồng với tổng diện tích 12.754,6 m2; chênh lệch tăng so với giá khởi điểm là 12.523 triệu đồng.
Trạng thái: còn 9 lô đất.