

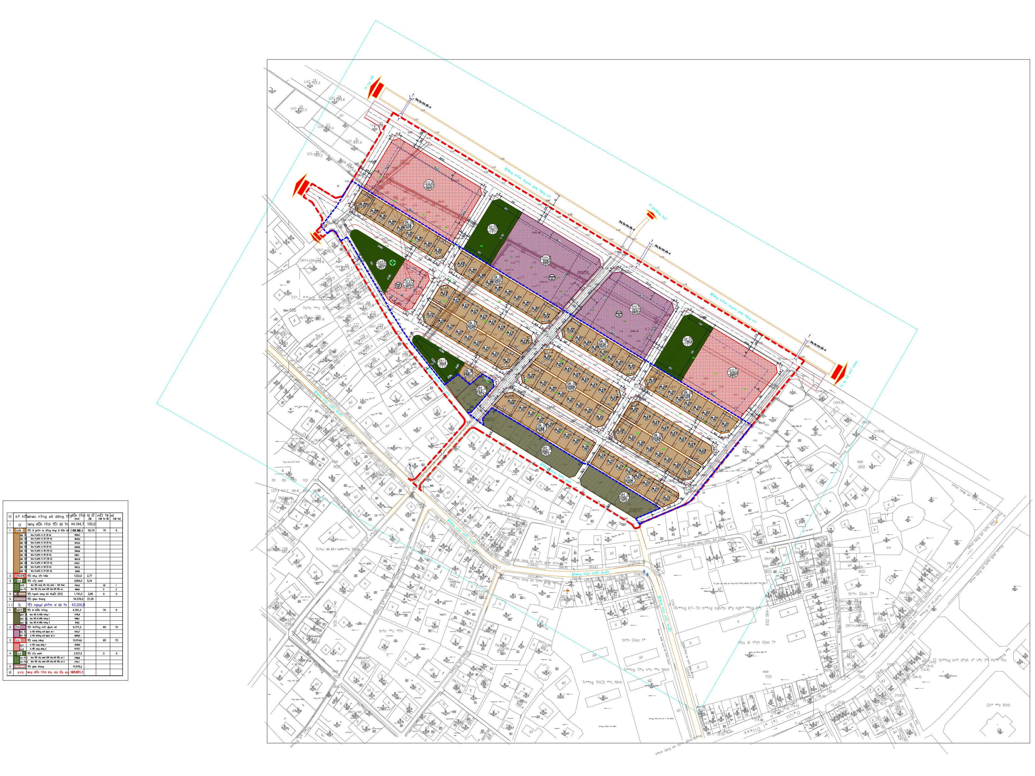
1. Vị trí dự án:
Dự án Khu vực lập quy hoạch chi tiết khu vực thôn Đức Sơn và thôn Đức Điền, xã Đức Ninh, thành phố Đồng Hới có ranh giới xác định như sau:
- Phía Đông Bắc giáp đường tránh thành phố Đồng Hới.
- Phía Đông Nam giáp khu dân cư hiện trạng và đất lúa.
- Phía Tây Nam giáp đường giao thông và khu dân cư hiện trạng.
- Phía Tây Bắc giáp đất lúa.
2. Quy mô đầu tư xây dựng: Tổng diện tích quy hoạch là 4,25 ha (trong đó tạo ra 2,25 ha đất ở) bao gồm các hạng mục: Giao thông, san nền, cấp điện, cấp nước, thoát nước mưa.
3. Thông tin đấu giá quyền sử dụng đất dự án:
Đợt 1: Đưa ra đấu giá quyền sử dụng 69 thửa đất (diện tích 14.974,3 m2), có diện tích từ 180,0m2/thửa đến 348,6m2/thửa; Giá khởi điểm từ 900 triệu đồng/thửa đến 1.882 triệu đồng/thửa.
Kết quả: đấu giá thành công 60/69 lô, số tiền thu được là 75,9 tỷ đồng, chênh lệch 12,5 tỷ đồng.
Đợt 2: Đưa ra đấu giá quyền sử dụng 29 thửa đất (diện tích 6.233,1 m2), có diện tích từ 190,0m2/thửa đến 299,4m2/thửa; Giá khởi điểm từ 1.820 triệu đồng/thửa đến 3.440 triệu đồng/thửa.
4. Thời gian, địa điểm thực hiện các thủ tục đấu giá tài sản:
- Thời gian, địa điểm tham khảo, bán hồ sơ, đăng ký tham gia đấu giá và bỏ phiếu trả giá: Từ ngày 21/6/2022 đến 16h30’ ngày 06/7/2022 (Trong giờ hành chính các ngày làm việc) tại Trung tâm Dịch vụ đấu giá tài sản tỉnh Quảng Bình.
- Thời gian, địa điểm xem tài sản: Vào ngày 30/6/2022 và ngày 01/7/2022 tại vị trí thửa đất đưa ra đấu giá. Khách hàng có nhu cầu liên hệ Trung tâm Dịch vụ đấu giá tài sản để sắp xếp, bố trí thời gian cụ thể đi xem tài sản.
- Thời gian, địa điểm nộp tiền đặt trước: Từ 07h30’ ngày 04/7/2022 đến 16h30’ ngày 06/7/2022 vào tài khoản của Trung tâm Dịch vụ đấu giá tài sản tỉnh Quảng Bình mở tại Ngân hàng thương mại.
- Thời gian, địa điểm buổi công bố kết quả trả giá: Vào lúc 08h00’ ngày 09/7/2022 tại Hội trường trụ sở Trung tâm Dịch vụ đấu giá tài sản tỉnh Quảng Bình.
Mọi chi tiết xin liên hệ: Tại Trung tâm Dịch vụ đấu giá tài sản, điện thoại: 0232.3533568 (Gặp đ/c Huyền); Ban quản lý dự án Đầu tư xây dựng và Phát triển quỹ đất thành phố Đồng Hới, website: http://daugia.quangbinh.gov.vn.
Xem chi tiết các lô đất tại đây